Bezugsfreie, zauberschöne Whg in der ehemaligen Königlich Peußischen Tuchmanufaktur
-
(english version see below)
ca. 700 m vom Berliner Hauptbahnhof entfernt, am Fritz-Schloss-Park, und fußläufig zu dem Vabali Spa,
in einem denkmalgeschützten Ensemble,
der ehemaligen Königlich Preussischen Tuchmanufaktur, in der Lehrter Strasse,
heute ein Werkhofgelände mit Film- und Kunstschaffenden, Architekten und Handwerk,
in einem historischen Altbau, gearbeitet in wunderschönen roten Klinkersteinen, mit einem schmiedeeisernen Treppenhaus,
steht dieses 1.5 Zimmer-Apartment zum Verkauf.
In der näheren Umgebung befinden sich zahlreiche Sportzentren: Das Poststadion (Sportpark Moabit), Tennisplätze, Kletterwand und ein frisch renoviertes Hallenbad ("Stadtbad Tiergarten")
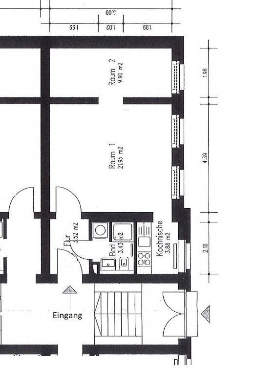
Die Wohnung:
1 Wohnraum
1 Schlafraum
1 Duschbadezimmer mit Tageslicht
1 Kochnische
1 Flur
1 Keller.
Die Wohnung liegt im Hochparterre.
Sie ist ca. 42,6 qm groß.
Diesem "Haus 5" ist ein Garten als Sondernutzungsfläche für die Hausgemeinschaft zugeordnet.
Die Ausstattung:
Glattputz an den Wänden
Holzdoppelkastenfenster
Die Fenster haben eine Nord-West-Ausrichtung
Graues Linoleum als Bodenbelag
Raumhöhe ca. 3,30 Meter
Das Badezimmer hat Tageslicht und ist mit einer Dusche ausgestattet
Im Badezimmer ist Platz für die Waschmaschine
Eine Pantryküche ist vorhanden
Die Energieversorgung erfolgt über Fernwärme
Der Keller ist im Grundbuch der Wohnung fest zugeordnet.
In dem Hausgeld in Höhe von 242,88 € ist die Instandhaltungsrücklage in Höhe von 38,63 € bereits enthalten.
Die jährliche Grundsteuer beträgt 115,24 €
Unseren Angeboten liegen die uns von unserem Auftraggeber erteilten Auskünfte zugrunde. Die Angebote werden nach bestem Wissen und Gewissen erteilt. Eine Haftung für den Inhalt wird nicht übernommen. Die Angebote sind freibleibend und unverbindlich. Irrtum, Zwischenverkauf bzw. Zwischenvermietung bleiben vorbehalten. Sofern Ihnen eine durch uns nachgewiesene Gelegenheit im Hinblick auf das angebotene Objekt und die Bereitschaft des anderen Vertragsteils zum Abschluss eines Vertrages bereits bekannt ist, teilen Sie uns dies bitte mit. Zur Abstimmung eines Besichtigungstermin senden Sie uns gern Ihre Telefonnummer.
Approximately 700 meters from Berlin Central Station, next to Fritz-Schloss-Park, and within walking distance of the Vabali Spa,
in a listed ensemble,
the former Royal Prussian Cloth Manufactory, on Lehrter Strasse,
today, a workshop complex with filmmakers and artists, architects and craftsmen,
in a historic old building, constructed in beautiful red clinker bricks, with a wrought-iron staircase,
this 1.5-room apartment is for sale.
There are numerous sports centres in the immediate vicinity: the Poststadion (Moabit Sports Park), tennis courts, a climbing wall and a newly renovated indoor swimming pool (Stadtbad Tiergarten).
The apartment:
1 living room
1 bedroom
1 shower room with natural light
1 kitchenette
1 hallway
1 basement
The apartment is located on the mezzanine floor
It is approx. 42.6 sqm in size
This "House 5" has a garden as a special use area for the house community.
The features:
Smooth plaster on the walls
Double wooden casement windows
The windows face north-west
Grey linoleum flooring
Room height approx. 3.30 meters
The bathroom has natural light and is equipped with a shower
There is space for a washing machine in the bathroom
A kitchenette is available
Energy is supplied via district heating.
The basement is permanently assigned to the apartment in the land register.
The maintenance reserve of € 38.63 is already included in the monthly maintenance fee of € 242.88.
The annual property tax is € 115.24.
Our offers are based on the information provided to us by our client. The offers are made to the best of our knowledge and belief. We accept no liability for the content. The offers are subject to change and non-binding. Errors, prior sale, or prior rental are reserved. If you are already aware of an opportunity we have identified with regard to the property offered and the willingness of the other party to conclude a contract, please let us know. To arrange a viewing appointment, please send us your phone number. -
- Kaufpreis: 325.000 €
- Provision: 3,57% inkl. MwSt.
-
-
- Endenergieverbrauch: 126 kWh/( m²*a)
- Baujahr: 1875,2005
- Energiepass-Art: Verbrauch
- Gebäudeart: Wohngebäude
- gueltig bis: 06.11.2028








