Mulackstraße: 5 Zi-Whg im Einzeldenkmal im VH 3.OG mit Aufzug (WE11)
-
(English version see below)
In Berlin Mitte, in der Mulackstraße, in einem der ältesten Häuser im Berliner Scheunenviertel, wurde in den letzten 3 Jahre dieses Einzeldenkmal aufwendigst und besonders liebevoll saniert.
Zum Verkauf steht aktuell diese 4-Zimmer-Wohnung zzgl. einer großem Wohnküche im VH im 3. OG.
Mit Aufzug auf die Etage.
In einem der schönsten Häuser in diesem beliebten, historischen Stadtteil.
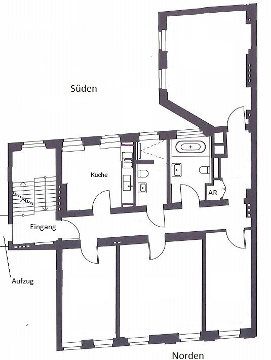
Die Wohnung:
3 separate Zimmer mit Fenstern zu Mulackstraße
1 geräumige Wohnküche mit Fenstern zum Innenhof (Südseite) 1 Schlafzimmer zum ruhigen Innenhof
1 Wannenbad mit Fenster
1 Duschbad mit Fenster
1 Diele mit eingebautem Garderobenschrank 1 Einbauschrank für Waschmaschine und Trockner
1 Flur
– kein Keller vorhanden –
Von Eigentümer wurden allerding einige Tiefgaragenstellplätze vorsorglich für das Haus angemietet. Diese könnten vom neunen Eigentümer übernommen werden. Auf den Stellplätzen lässt sich bei Bedarf auch eine Lagerbox unterbringen.
Die Ausstattung:
Wandgestaltung in Spachteltechnik aus mineralischem Gestein.
Vollholz-Douglasien-Dielen mit umlaufendem Fries in allen Räumen.
Vom Tischler maßangefertige Heizungsabdeckungen.
Aus der Britischen Manufaktur Studio Ore Armaturen in beiden Bädern.
Holzdoppelkastenfenster.
Aufwendig gestaltetes Treppenhaus.
Die Wohnung ist bezugsfrei.
Da es sich bei dem Gebäude um eines der ältesten Wohnhäuser im Scheunenviertel handelt, steht das gesamte Haus mit den Eingangsbereichen, den Treppenhäusern und Durchgängen unter Denkmalschutz. Die Sanierungsarbeiten fanden unter strengen Auflagen der Denkmalbehörde statt und sind sehr gelungen. Ein Energieausweis wird nicht benötigt, da es sich um Einzeldenkmal handelt. In dem Wohngeld in Höhe von EUR 544,80 ist die anteilige Instandhaltungsrücklage und auch die Vorauszahlungen für Heizung und Warmwasser bereits enthalten.
Unseren Angeboten liegen, die uns von unserem Auftraggeber erteilten Auskünfte zugrunde. Die Angebote werden nach bestem Wissen und Gewissen erteilt. Eine Haftung für den Inhalt wird nicht übernommen. Die Angebote sind freibleibend und unverbindlich. Irrtum, Zwischenverkauf bzw. Zwischenvermietung bleiben vorbehalten. Sofern Ihnen eine durch uns nachgewiesene Gelegenheit im Hinblick auf das angebotene Objekt und die Bereitschaft des anderen Vertragsteils zum Abschluss eines Vertrages bereits bekannt ist, teilen Sie uns dies bitte mit. Zur Abstimmung eines Besichtigungstermin senden Sie uns gern Ihre Telefonnummer.
English Version:
In Berlin Mitte, in the Mulackstraße, in one of the oldest houses in Berlin's Scheunenviertel, this individual monument has been extensively and lovingly renovated over the last 3 years.
This charming 3-bedroom-apartment on the third floor is currently for sale.
In one of the most beautiful houses in this popular, historic district.
The apartment:
3 separate rooms with windows facing Mulackstraße
1 spacious eat-in kitchen with windows to the inner courtyard
1 bedroom facing the quiet inner courtyard
1 bathroom with bathtub and window
1 shower room with window
1 hallway with wardrobe and a built-in cupboard for washing machine and tumble dryer
1 hallway
– no basement storage –
However, the owner has rented several underground parking spaces for the building as a precautionary measure. These could be taken over by the new owner. If required, a storage box can also be accommodated in the parking spaces.
The features:
Solid wood Douglas fir floorboards with surrounding frieze in all rooms.
Bespoke heating covers.
Studio Ore fittings in the bathrooms.
Wooden double box windows.
Elaborately designed staircase.
Elevator.
The apartment is vacant.
As the building is one of the oldest residential buildings in the Scheunenviertel, the entire house, including the entrance areas, stairwells and passageways, is a listed building. The refurbishment work was carried out under strict conditions imposed by the listed building authorities and was very successful.
An energy certificate is not required, as the building is an individual monument. The pro rata maintenance reserve and the advance payments for heating and hot water are already included in the rent of EUR 544,80.
Our offers are based on the information provided to us by our client. The offers are made to the best of our knowledge and belief. No liability is assumed for the content. The offers are subject to change and non-binding. Errors, prior sale or prior letting are reserved.
If you are already aware of an opportunity that we have identified with regard to the property on offer and the willingness of the other party to the contract to conclude a contract, please let us know. To arrange a viewing appointment, please send us your telephone number. -
- Kaufpreis: 1.150.000 €
- Mtl. Wohngeld: 544,80 €
- Provision: 3,57 % inkl. MwSt.
-
-
- Endenergiebedarf: 91,7 kWh/( m²*a)
- Baujahr: 1899,2025
- Energiepass-Art: Bedarf
- Gebäudeart: Wohngebäude
- gueltig bis: 20.08.2033








