260 qm Büroetage im Einzeldenkmal an der Ecke Bülowstraße Potsdamer Straße
-
(English version please see below)
In der Potsdamer Straße 144 – hier wo sich gerade so viel bewegt – findet sich diese ca. 260 qm große Gewerbefläche mit klassicher Büroaufteilung. Aus dem großen Besprechungsraum mit dem ovalen Erker blickt man aus dem denkmalgeschützten, ehemaligen Geschäftshaus der Firma "Carisch-Kaffee" auf die belebte Kreuzung Potsdamer Straße – Ecke Bülowstraße.
Im Gegensatz zu dem Gebäude selbst – ein Denkmal aus der Kaiserzeit – sind die umliegenden Straßen vom Wandel geprägt. Hier finden sich die Überlagerungen von altem und neuem Berlin aus hier wächst etwas Neues! Zahlreiche namhafte Galerien, Kulturinstitutionen, schönste Modegeschäfte sind ebenso fußläufig zu erreichen wie Cafés, Bars und Sterne-Restaurants. Auf der anderen Seite der Kreuzung befindet sich das neu errichtete SONY Music Headquarter. Der Anschluss an den öffentlich Nahverkehr findet sich direkt vor dem Haus.
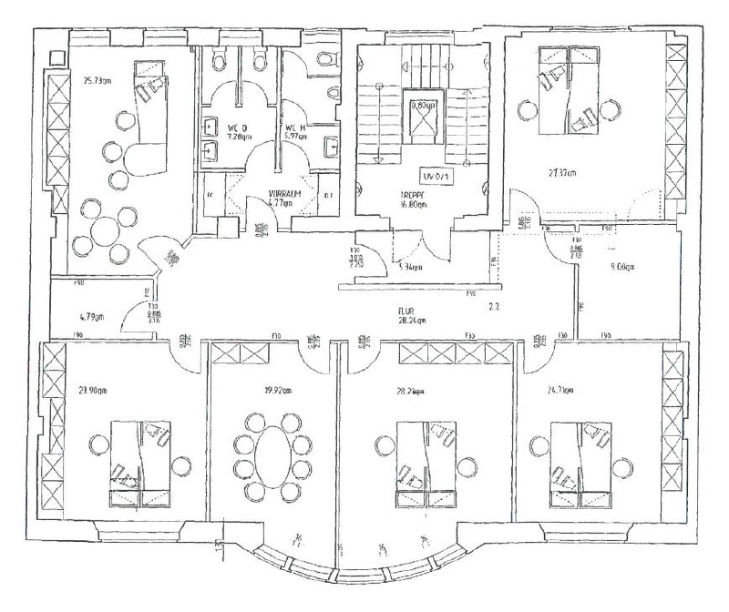
Die Fläche:
– 5 Büroräume, davon ein großer Besprechungsraum
– alle Räume sind separat über den Flur zu erreichen
– 2 Lagerräume bzw. Serverräume
– 1 Pantryküche
– Sanitätanlagen (D und H) – Flur
Die Details:
– 260 qm auf einer Ebene
– Teppichbodenbelag
– Klimaanlage
– Bäder werden vor Mietbeginn saniert
– Kfz-Stellplätze im ruhigen Innenhof
– Hauseingang und Treppenhaus werden in naher Zukunft modernisiert
Die Gewerbeeinheit in der 4. Etage mit weiteren 260 qm steht ebenso zur Vermietung und kann besichtigt werden.
Unseren Angeboten liegen die uns von unserem Auftraggeber erteilten Auskünfte zugrunde. Die Angebote werden nach bestem Wissen und Gewissen erteilt. Eine Haftung für den Inhalt wird nicht übernommen. Die Angebote sind freibleibend und unverbindlich. Irrtum, Zwischenverkauf bzw. Zwischenvermietung bleiben vorbehalten.
Sofern Ihnen eine durch uns nachgewiesene Gelegenheit im Hinblick auf das angebotene Objekt und die Bereitschaft des anderen Vertragsteils zum Abschluss eines Vertrages bereits bekannt ist, teilen Sie uns dies bitte mit. Zur Abstimmung eines Besichtigungstermin senden Sie uns gern Ihre Telefonnummer.
English Version:
This approximately 260 sqm commercial space with a classic office layout is located at Potsdamer Straße 144, where there is currently a lot going on.
The large meeting room with its oval bay window offers a view of the bustling intersection of Potsdamer Straße and Bülowstraße from the listed former commercial building of the "Carisch-Kaffee" company.
In contrast to the building itself, a monument from the imperial era, the surrounding streets are characterized by change. Here, the old and new Berlin overlap, and something new is growing!
Numerous renowned galleries, cultural institutions, and beautiful fashion stores are within walking distance, as are cafés, bars, and Michelin-starred restaurants. On the other side of the intersection is the newly built SONY Music headquarter.
Public transportation is available directly in front of the building.
The space:
– 5 offices, including a large meeting room
– All rooms are accessible separately via the hallway
– 2 storage rooms or server rooms
– 1 kitchenette
– Bathroom facilities (D and H) – Hall
The details:
– 260 sqm on one level
– Carpeted floors
– Air conditioning
– Bathrooms will be renovated before the start of the lease
– Parking spaces in the quiet courtyard
– Building entrance and stairwell will be modernized in the near future
The commercial unit on the 4th floor with an additional 260 sqm is also available for rent and can be viewed.
Our offers are based on the information provided to us by our client. The offers are made to the best of our knowledge and belief. No liability is assumed for the content. The offers are subject to change and non-binding. Errors, prior sale, or prior rental are reserved.
If you are already aware of an opportunity we have identified with regard to the property offered and the willingness of the other party to conclude a contract, please let us know.
To arrange a viewing appointment, please send us your telephone number.
-
- Nettokaltmiete: 4.680,00 €
- Nebenkosten: 4,20 €
- Kaution: 14.040,00 €
-
-
- Baujahr: 1907,2015
- Gebäudeart: nichtWohngebäude








