3 Zi-Whg gg Museumsinsel an der Spree mit Balkon Concierge EBK Aufzug u. TG (1.6)
-
(english version see below)
In Berlin Mitte. Gegenüber des Berliner Doms, der Museumsinsel und Nähe Humboldtforum im Herzen der Stadt direkt an der Spree.
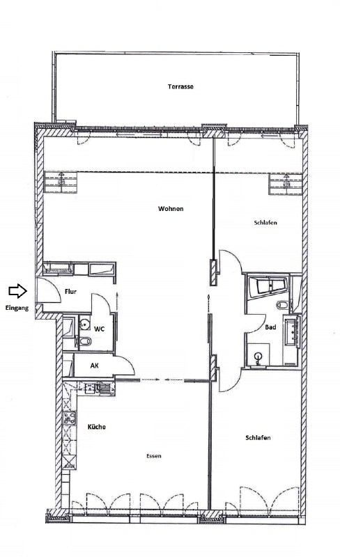
Hier eine komplett renovierte 3 Zimmer-Wohnung zuzüglich einer sehr großen offenen Wohnküche mit einer kompletten Einbauküche mit Küchenblock.
Die Wohnung hat eine große Terrasse zum schön gestalteten Innenhof, neben dem Badezimmer gibt es ein separates Gast-WC
sowie einen separaten Hauswirtschaftsraum.
Es handelt sich bei der Anlage um einen repäsentativen Neubau mit einem sehr freundlichen Concierge im Foyer (montags bis freitags).
Mit 2 Aufzügen von der Tiefgarage bis in die Wohnebene, schwellenfrei.
Pkw-Stellplätze in der Tiefgarage können optional mit angemietet werden.
Im Hause hat es einen großen Fahrrad-Keller, der schwellenfrei über den Aufzug bzw. über die Tiefgarage zu erreichen ist.
Die Wohnung:
1 offener Wohnraum mit Fenstern nach Süd-Osten und Nord-Westen
1 offene Wohnküche mit einer neuen Einbauküche mit allen Geräten und Oberschränken
2 Schlafzimmer
1 Badezimmer
1 separates Gäste-WC
1 separater Hauswirtschaftsraum
1 Flur
1Terrasse nach Süd-Osten
1 Mieterkeller.
Die Ausstattung:
Parkett, Schwarzeiche geölt, in allen Räumen als Bodenbelag
Mit Fußbodenheizung
Glattputz an den Wänden
Raumhohe Schiebetüren
Raumhöhe ca. 3 m.
Eine komplette Einbauküche mit allen Elektrogeräten und einem freistehenden Küchenblock ist eingebaut.
Optional können Tiefgaragenstellplätze im Hause mit angemietet werden.
Fahrradstellplätze befinden sind in einer der drei Tiefgaragenebenen.
Ebenso der Mieterkeller
Unseren Angeboten liegen die uns von unserem Auftraggeber erteilten Auskünfte zugrunde. Die Angebote werden nach bestem Wissen und Gewissen erteilt. Eine Haftung für den Inhalt wird nicht übernommen. Die Angebote sind freibleibend und unverbindlich. Irrtum, Zwischenverkauf bzw. Zwischenvermietung bleiben vorbehalten.
Sofern Ihnen eine durch uns nachgewiesene Gelegenheit im Hinblick auf das angebotene Objekt und die Bereitschaft des anderen Vertragsteils zum Abschluss eines Vertrages bereits bekannt ist, teilen Sie uns dies bitte mit.
In Berlin Mitte.
Opposite Berlin Cathedral, Museum Island, and close to the Humboldt Forum in the heart of the city, right on the Spree.
Here is a completely renovated 3-room apartment
plus a very large open-plan kitchen with a fully fitted kitchen and kitchen island.
The apartment has a large terrace facing the beautifully designed courtyard, next to the bathroom there is a separate guest toilet
and a separate utility room.
The complex is a prestigious new building with a very friendly concierge in the foyer (Monday to Friday).
There are 2 elevators from the underground parking garage to the residential level, with no thresholds.
Parking spaces in the underground garage can be rented optionally.
The building has a large bicycle storage room, which can be reached without steps via the elevator or the underground garage.
The apartment:
1 open living room with windows facing south-east and north-west
1 open kitchen with a new fitted kitchen with all appliances and wall cabinets
2 bedrooms
1 bathroom
1 separate guest WC
1 separate utility room
1 hallway
1 south-east facing terrace
1 tenant basement.
The features:
Oiled black oak parquet flooring in all rooms
Underfloor heating
Smooth plaster on the walls
Room-height sliding doors
Room height approx. 3 m.
A complete fitted kitchen with all electrical appliances and a freestanding kitchen unit is installed.
Underground parking spaces in the building can also be rented.
Bicycle parking spaces are located on one of the three underground parking levels.
The same applies to the tenant's basement storage room.
Our offers are based on the information provided to us by our client. The offers are made to the best of our knowledge and belief. No liability is assumed for the content. The offers are subject to change and non-binding. Errors, prior sale, or prior rental are reserved.
If you are already aware of an opportunity we have identified with regard to the property offered and the willingness of the other party to conclude a contract, please let us know.
-
- Nettokaltmiete: 2.478,05 €
- Warmmiete: 3.318,05 €
- Nebenkosten: 840,00 €
- Kaution: 7.434,15 €
-
-
- Endenergiebedarf: 67,9 kWh/( m²*a)
- Baujahr: 2004,2018
- Energiepass-Art: Bedarf
- Gebäudeart: Wohngebäude
- gueltig bis: 26.05.2029








