3 Zi-Whg mit Süd-Terrasse EBK Aufzug und Tiefgarage (WE16)
-
(English version see below)
Lage Lage Lage!
In Berlin Mitte, unfern dem Regierungsviertel, in der Johannisstrasse, steht diese sehr exquisite 3 Zimmer-Wohnung zum Verkauf.
Im Vorderhaus, in der 4. Etage gelegen.
Mit einem schwellenfreien Aufzug direkt auf die Etage.
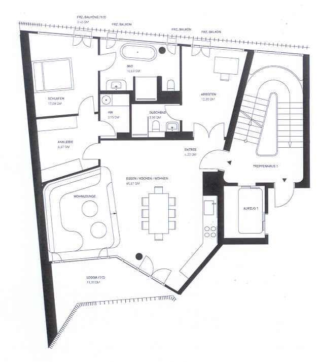
Die Wohnung:
1 großer Wohnraum nach Süden
1 überdachte Terrasse mit ca. 11 qm nach Süden (zu 50% in der Wohnfläche mit angerechnet) 1 offene Wohnküche mit einer kompletten EBK
1 Schlafzimmer
1 Arbeitszimmer (optional 2. Schlafzimmer) 1 Ankleidezimmer
2 Vollbäder
1 Hauswirtschaftsraum bei der Ankleide
1 Keller.
Optional könnten 1 oder 2 Tiefgaragenstellplätze erworben werden (Stapelparker, zu EUR 65.000,00).
Beschreibung der Wohnung:
Vom Aufzug, der schwellenfrei auf der Etage hält, gelangt man direkt in den Wohn-/Essbereich mit ca. 50 qm. Diesem Bereich schließt sich die eingelassene Wohnlounge mit einer maßangefertigter Lederpolstergruppe an. Bodentiefe Isolierglasfenster aus Aluminium sowohl zur Süd-Terrasse als auch bei den beiden Schlafzimmern und dem Master-Badezimmer.
Eigenparkett in allen Räumen.
Fußbodenheizung in allen Räumen mit Konvektoren vor den Fenstern.
Die Fenster nach Süden (zur Terrasse) haben elektrische Außenjalousien.
Glattputz an den Wänden.
Aktuell hat es ein geräumiges Schlafzimmer, das Arbeitszimmer könnte als 2. Schlafzimmer genutzt werden.
Das große Master-Bad, ein Ensuite Bad, hat eine freistehende Badewanne und eine große schwellenfreie Dusche.
Das zweite Badezimmer ist ebenso ein Ensuite Bad mit schwellenfreier Dusche.
Dem Master-Bedrom vorgelagert ist das Ankleidezimmer mit ca. 9 qm und ein separater Hauswirtschaftsraum für Waschmaschine und Trockner.
Zu der Wohnung gehört ein (kleiner) Keller.
Die jährliche Grundsteuer für die Wohnung beträgt 792,88,-€.
Gegenüber des Tacheles Geländes entstand hier im Jahr 2010 ein vollkommen neu interpretierter und außergewöhnlicher Neubau mit luxuriösen, repräsentativen und sehr privaten Lebensräumen.
Neben der Kalkscheune und gegenüber dem Tacheles gelegen.
In Berlin-Mitte, nahe der Museumsinsel, dem Monbijou Park, der Friedrichstrasse, der Spree… Die sehr aufwendige Fassadenhaut ist weich, dreidimensional, plastisch gestaltet aus unzähligen vertikalen Aluminium-Lamellen, die auch als Sonnenschutz dienen.
Unseren Angeboten liegen, die uns von unserem Auftraggeber erteilten Auskünfte zugrunde. Die Angebote werden nach bestem Wissen und Gewissen erteilt. Eine Haftung für den Inhalt wird nicht übernommen. Die Angebote sind freibleibend und unverbindlich. Irrtum, Zwischenverkauf bzw. Zwischenvermietung bleiben vorbehalten.
Sofern Ihnen eine durch uns nachgewiesene Gelegenheit im Hinblick auf das angebotene Objekt und die Bereitschaft des anderen Vertragsteils zum Abschluss eines Vertrages bereits bekannt ist, teilen Sie uns dies bitte mit. Zur Abstimmung eines Besichtigungstermin senden Sie uns gern Ihre Telefonnummer.
Location, location, location!
This exquisite 3-room flat is for sale in Berlin Mitte, not far from the government district, on Johannisstrasse.
Located on the 4th floor of the front building.
With a threshold-free lift directly to the floor.
The flat:
1 large south-facing living room
1 covered terrace of approx. 11 sqm facing south
1 open-plan kitchen with a complete fitted kitchen
1 bedroom
1 study (optional 2nd bedroom) 1 dressing room
2 full bathrooms
1 utility room next to the dressing room
1 cellar.
Optionally, 1 or 2 underground parking spaces could be purchased (parking space in the parking system, EUR 65,000).
Description of the flat:
The lift, which stops on the floor without a threshold, leads directly into the living/dining area, which is approx. 50 sqm.
This area is adjoined by the sunken living lounge with a custom-made leather upholstered suite.
Floor-to-ceiling insulated aluminium windows on the south-facing terrace as well as in both bedrooms and the master bathroom.
Parquet flooring in all rooms.
Underfloor heating in all rooms with convectors in front of the windows.
The south-facing windows (facing the terrace) have electric external blinds.
Smooth plaster on the walls.
Currently, there is one spacious bedroom, but the study could be used as a second bedroom.
The large master bathroom, an en-suite bathroom, has a freestanding bathtub and a large barrier-free shower.
The second bathroom is also an en-suite bathroom with a barrier-free shower.
In front of the master bedroom is the dressing room with approx. 9 sqm and a separate utility room for washing machine and dryer.
The flat has a (small) cellar.
The annual property tax for the flat is €792.88.
Opposite the Tacheles site, a completely reinterpreted and extraordinary new building with luxurious, prestigious and very private living spaces was constructed here in 2010.
Next to the Kalkscheune and opposite the Tacheles.
In Berlin-Mitte, close to Museum Island, Monbijou Park, Friedrichstrasse, the River Spree…
The very elaborate façade cladding is soft, three-dimensional and sculpturally designed from countless vertical aluminium slats, which also serve as sun protection.
Our offers are based on the information provided to us by our client. The offers are made to the best of our knowledge and belief. No liability is assumed for the content. The offers are subject to change and non-binding. Errors, prior sale or prior letting are reserved.
If you are already aware of an opportunity we have identified with regard to the property offered and the willingness of the other party to conclude a contract, please let us know.
To arrange a viewing appointment, please send us your telephone number.
-
- Kaufpreis: 999.000 €
- Mtl. Wohngeld: 690,42 €
- Provision: 3,57% inkl. MwSt.
-
-
- Endenergieverbrauch: 78 kWh/( m²*a)
- Baujahr: 2010
- Energiepass-Art: Verbrauch
- Gebäudeart: Wohngebäude
- gueltig bis: 21.07.2030








