4 Zi-DG-Whg in der Mommsenstr Höhe Wielandstr mit Terrasse Aufzug u. EBK
-
(English version seee below)
Im allerschönsten Charlottenburg.
In der Mommsenstraße, zwischen Schlüter- und Wielandstraße.
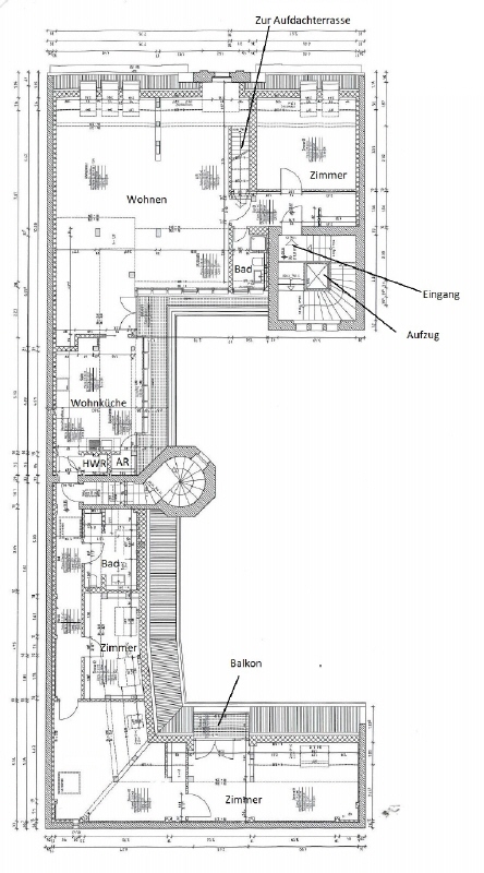
Hier eine 4-Zimmer-Wohnung mit 1 Aufdachterrasse und 2 Terrassen auf der Wohnebene.
In einen Dachgeschossaufbau aus 1988, welcher 2019 nochmal modernisiert wurde, auf einem sehr repräsentativen Altbau aus 1905.
Mit einem Aufzug bis in die 4. Etage, eine Etage muss man laufen.
Grundsätzlich würde der Vermieter einer teilgewerblichen Nutzung der Wohnung zustimmen, dann wäre es dem Mieter möglich, mit dieser Meldeadresse Rechnungen auszustellen.
Die Wohnung wird befristet auf 2-3 Jahre vermietet (VB).
Die Wohnung:
1 großer Wohnraum
1 Aufdachterrasse, welche zum Verweilen einlädt
2 Terrassen auf der Wohnebene, 1 bei der Wohnküche, 1 beim Hauptschlafzimmer
1 Wohnküche mit einer kompletten EBK
3 Schlafzimmer
1 Ankleidebereich
1 Hauptbad
1 Duschbad
1 Hauswirtschaftsraum
1 Speisekammer
1 Flur
1 Diele
1 Mieterkeller
Die Ausstattung:
Stirnholzparkett in allen Räumen
Glattputz an den Wänden
Eine komplette Einbauküche ist vorhanden
Alufenster, z.T. als Studiofenster (siehe Bilder) Mit diversen Oberlichtern
Das Gästebad beim Eingang hat eine Dusche und ein Fenster
Das große Badezimmer hat eine Badewanne, eine Dusche u. ein Fenster
Im Flur zu den Privaträumen gibt es ca. 10 Meter Ankleideschränke schon eingebaut.
Die Warmwasserversorgung erfolgt über einen Durchlauferhitzer
Unseren Angeboten liegen die uns von unserem Auftraggeber erteilten Auskünfte zugrunde. Die Angebote werden nach bestem Wissen und Gewissen erteilt. Eine Haftung für den Inhalt wird nicht übernommen. Die Angebote sind freibleibend und unverbindlich. Irrtum, Zwischenverkauf bzw. Zwischenvermietung bleiben vorbehalten.
Sofern Ihnen eine durch uns nachgewiesene Gelegenheit im Hinblick auf das angebotene Objekt und die Bereitschaft des anderen Vertragsteils zum Abschluss eines Vertrages bereits bekannt ist, teilen Sie uns dies bitte mit.
English version:
In beautiful Charlottenburg:
On Mommsenstraße, between Schlüterstraße and Wielandstraße.
Here is a 3 bedroom apartment with 1 roof terrace and 2 terraces on the living level.
In an attic conversion from 1988 on a very prestigious old building from 1905
With an elevator to the 4th floor, one floor must be walked.
In principle, the landlord would agree to partial commercial use of the apartment, which would allow the tenant to issue invoices with this registered address.
The apartment:
1 large living room
1 roof terrace, which invites you to linger.
2 terraces on the living level, 1 off the kitchen, 1 off the master bedroom
1 kitchen with a complete fitted kitchen unit
3 bedrooms
1 dressing area
1 shower room
1 primary bathroom
1 utility room
1 pantry
1 hallway
1 entrance hall
1 tenant's basement
The features:
Hardwood parquet flooring in all rooms
Smooth plaster on the walls
A fully equipped kitchen is available
Aluminum windows, some as studio windows (see pictures) With various skylights
The guest bathroom at the entrance has a shower and a window
The primary bathroom has a bathtub, a shower, and a window
In the hallway to the private rooms, there are approx. 10 meters of built-in dressing cabinets.
The apartment is being rented for a limited period of 2-3 years (negotiable)
Our offers are based on the information provided to us by our client. The offers are made to the best of our knowledge and belief. No liability is assumed for the content. The offers are subject to change and non-binding. Errors, prior sale, or prior rental are reserved. If you are already aware of an opportunity we have identified with regard to the property offered and the willingness of the other party to conclude a contract, please let us know. -
- Nettokaltmiete: 4.000,00 €
- Warmmiete: 4.900,00 €
- Nebenkosten: 900,00 €
- Kaution: 15.000,00 €
-
-
- Endenergieverbrauch: 110,56 kWh/( m²*a)
- Baujahr: 1900,2019
- Energiepass-Art: Verbrauch
- Gebäudeart: Wohngebäude
- gueltig bis: 11.07.2028










