4 Zi-Whg mit Süd-Terrasse Kamin Aufzug u. TG
-
(English version see below)
Zum Verkauf steht hier diese familienfreundliche 4-Zimmer-Wohnung im Vorderhaus in der 2. Etage.
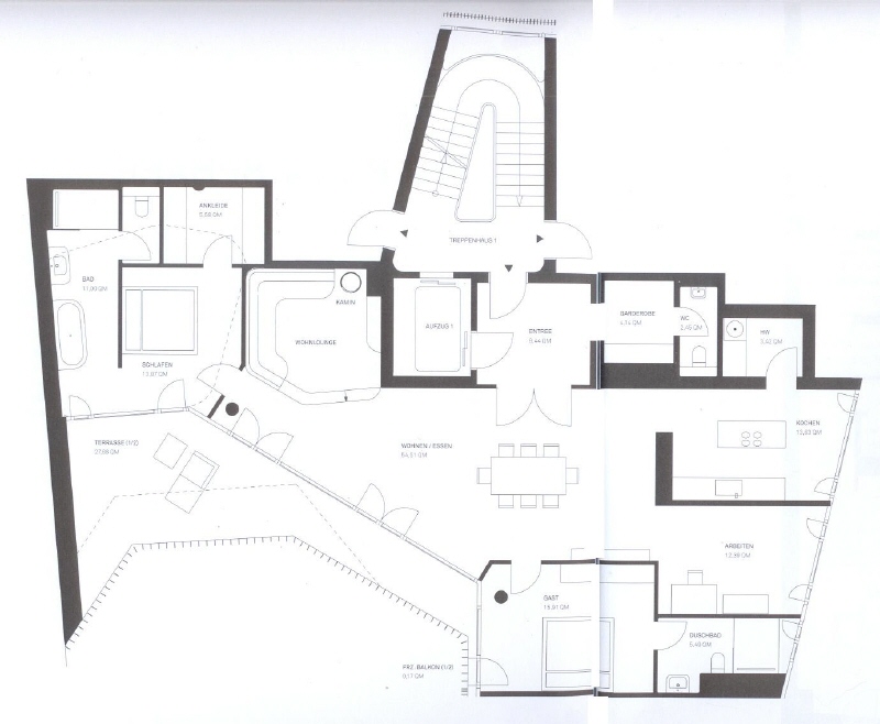
Mit einem schwellenfreien Aufzug direkt auf die Etage (siehe Grundriss).
Vom Aufzug hat man auch den direkten Zugang in das große und sehr schöne Entrée mit einer integrierten Garderobe.
Die Wohnung:
Großes Entrée
Garderobenraum beim Entrée
1 Gast-WC
1 großer Wohnraum nach Süden
1 Terrasse mit ca. 28 qm nach Süden
1 separate Küche mit EBK
1 Hauswirtschaftsraum bei der Küche
1 Arbeitszimmer
2 Schlafzimmer
1 Ankleidezimmer
2 Vollbäder mit Fenster
1 Keller.
Optional könnten 1 oder 2 Tiefgaragenstellplätze im Parksystem zu EUR 65.000 erworben werden.
Beschreibung der Wohnung:
Vom Entrée, mit der sich anschließenden Garderobe, gelangt man über eine breite Flügeltür in den ca. 54 qm großen Wohnbereich, der sich u.a. zur Küche hin erweitert. Eine komplette Einbauküche mit allen Küchenelekrogeräten und einem Tresen mit Sitzgelegenheiten ist vorhanden.
Der Wohnraum hat einen organisch geformten, abgesenkten Loungebereich. Hier befindet sich auch der Kamin. Die Lounge ist mit einer maßangefertigten Leder-Polstergruppe versehen.
Der Kamin (Beheizung mit Holz) bildet das Zentrum der Lounge.
Bodentiefe Isolierglas-Fenster aus Aluminium überall. Eichenparkett in allen Räumen.
Mit Fußbodenheizung in allen Räumen und mit Konvektoren vor den Fenstern.
Die Fenster nach Süden (zur Terrasse) haben elektrische Außenjalousien. Glattputz an den Wänden.
Es hat aktuell 2 geräumige Schlafzimmer.
Das Arbeitszimmer könnte als 3. Schlafzimmer genutzt werden.
Das große Badezimmer ist ein En-Suite-Wellness-Bad mit großem bodentiefem Fenster zur Terrasse, einer Badewanne und einer schwellenfreien Dusche.
Das 2. Badezimmer ist ebenso ein En-Suite-Badezimmer mit schwellenfreier Dusche und einem bodentiefen Fenster.
Für die Gäste hat es klassisch das Gast-WC, beim Entrée, hinter der Garderobe.
Der Küche schließt sich 1 großer Hauswirtschaftsraum an mit der Option für Wachmaschine und Trockner.
Zu der Wohnung gehört ein (kleiner) Keller.
Die jährliche Grundsteuer für die Wohnung beträgt 1.170,72€.
Gegenüber des Tacheles Geländes entstand hier im Jahr 2010 ein vollkommen neu interpretierter und außergewöhnlicher Neubau mit luxuriösen, repräsentativen und sehr privaten Lebensräumen.
Neben der Kalkscheune und gegenüber dem Tacheles gelegen.
In Berlin-Mitte, nahe der Museumsinsel, dem Monbijou Park, der Friedrichstrasse, der Spree… Die sehr aufwendige Fassadenhaut ist weich, dreidimensional, plastisch gestaltet aus unzähligen vertikalen Aluminium-Lamellen, die auch als Sonnenschutz dienen.
Unseren Angeboten liegen, die uns von unserem Auftraggeber erteilten Auskünfte zugrunde. Die Angebote werden nach bestem Wissen und Gewissen erteilt. Eine Haftung für den Inhalt wird nicht übernommen. Die Angebote sind freibleibend und unverbindlich. Irrtum, Zwischenverkauf bzw. Zwischenvermietung bleiben vorbehalten.
Sofern Ihnen eine durch uns nachgewiesene Gelegenheit im Hinblick auf das angebotene Objekt und die Bereitschaft des anderen Vertragsteils zum Abschluss eines Vertrages bereits bekannt ist, teilen Sie uns dies bitte mit. Zur Abstimmung eines Besichtigungstermin senden Sie uns gern Ihre Telefonnummer.
This family-friendly 4-room flat on the 2nd floor of the front building is now available for sale.
A threshold-free lift takes you directly to the floor (see floor plan).
The lift also provides direct access to the large and very attractive entrance hall with an integrated cloakroom.
The flat:
Large entrance hall
Cloakroom in the entrance hall
1 guest WC
1 large south-facing living room
1 south-facing terrace of approx. 28 sqm
1 separate kitchen with fitted kitchen
1 utility room next to the kitchen
1 study
2 bedrooms
1 dressing room
2 full bathrooms with windows
1 cellar
Optionally, 2 underground parking spaces could be purchased for €65,000 each.
Description of the flat:
From the entrance hall with adjoining cloakroom, a wide double door leads into the approx. 54 sqm living area, which extends to the kitchen, among other things. A fully fitted kitchen with all kitchen appliances and a counter with seating is available.
The living room has an organically shaped, sunken lounge area.
The fireplace is also located here.
The lounge is furnished with a custom-made leather upholstered suite.
The fireplace (heated with wood) forms the centre of the lounge.
Floor-to-ceiling insulated glass windows made of aluminium throughout.
Oak parquet flooring in all rooms.
Underfloor heating in all rooms and convectors in front of the windows.
The south-facing windows (facing the terrace) have electric external blinds.
Smooth plaster on the walls.
It currently has two spacious bedrooms.
The study could be used as a third bedroom.
The large bathroom is an en-suite wellness bathroom with a large floor-to-ceiling window to the terrace, a bathtub and a threshold-free shower.
The second bathroom is also an en-suite bathroom with a threshold-free shower and a floor-to-ceiling window.
For guests, there is a classic guest WC in the entrance hall, behind the cloakroom.
The kitchen is adjoined by a large utility room with space for a washing machine and dryer.
The annual property tax for the flat is €1,170.72
Opposite the Tacheles site, a completely reinterpreted and extraordinary new building with luxurious, prestigious and very private living spaces was constructed here in 2010.
Located next to the Kalkscheune and opposite the Tacheles.
In Berlin-Mitte, close to Museum Island, Monbijou Park, Friedrichstrasse, the Spree…
The very elaborate façade skin is soft, three-dimensional and sculpturally designed from countless vertical aluminium slats, which also serve as sun protection.
Our offers are based on the information provided to us by our client. The offers are made to the best of our knowledge and belief. No liability is assumed for the content. The offers are subject to change and non-binding. Errors, prior sale or prior letting are reserved.
If you are already aware of an opportunity we have identified with regard to the property offered and the willingness of the other party to conclude a contract, please let us know.
To arrange a viewing appointment, please send us your telephone number. -
- Kaufpreis: 1.500.000 €
- Mtl. Wohngeld: 1.319,00 €
- Provision: 3,57% inkl. MwSt.
-
-
- Endenergieverbrauch: 78 kWh/( m²*a)
- Baujahr: 2010
- Energiepass-Art: Verbrauch
- Gebäudeart: Wohngebäude
- gueltig bis: 21.07.2030








