Am Kollwitzplatz: Gewerbefläche im VH mit direktem Zugang von der Husemannstr.
-
(English version see below)
In Berlin im Prenzlauer Berg.
In der Husemannstraße am Kollwitzplatz, einer der schönsten Straßen im Prenzlauer Berg.
In einem hochherrschaftlichen Altbau, der zu einem Denkmalensemble aus dem Jahr 1886 gehört.
Im Vorderhaus.
Mit 3 Stufen "nach unten" gelegen.
Keine 150 Meter vom Kollwitzplatz entfernt.
Die Ausstattung:
Die Gewerberäume wurden 2022 komplett renoviert. Und nun kürzlich, nach Auzug der Mieter, nochmal überarbeitet.
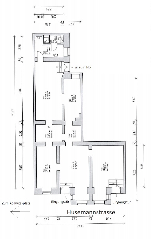
Es hat straßenseitig 2 Zugänge (siehe Grundriss), zum Innenhof gibt es einen weiteren Zugang.
Als Bodenbelag hat es betongraue sehr große Feinsteinfliesen in allen Räumen.
Glattputz an den Wänden.
Raumhöhe ca. 2,45 Meter.
Neue Holzisolierglasfenster wurden eingebaut.
Die gesamte Elektrik ist neu installiert worden.
Die Fenster zur Husemannstraße, straßenseitig, haben eine Ost-Ausrichtung.
Die Fenster im hinteren Raum zu Hof zeigen nach Norden.
Das Badezimmer ist mit einer Dusche ausgestattet.
Die Kosten für die Gas-Etagenheizung sind in den angegebenen Nebenkosten nicht enthalten. Hierfür schließt der neue Mieter einen Vertrag mit der Gasag ab (anteilige Kosten ca. 180,-€/Monat). Die Warmwasserversorgung erfolgt über einen Durchlauferhitzer.
Zu der Einheit gibt es keinen Keller.
Eine Besichtigung ist nach vorheriger Anmeldung gerne möglich.
Unseren Angeboten liegen die uns von unserem Auftraggeber erteilten Auskünfte zugrunde. Die Angebote werden nach bestem Wissen und Gewissen erteilt. Eine Haftung für den Inhalt wird nicht übernommen. Die Angebote sind freibleibend und unverbindlich. Irrtum, Zwischenverkauf bzw. Zwischenvermietung bleiben vorbehalten.
Sofern Ihnen eine durch uns nachgewiesene Gelegenheit im Hinblick auf das angebotene Objekt und die Bereitschaft des anderen Vertragsteils zum Abschluss eines Vertrages bereits bekannt ist, teilen Sie uns dies bitte mit.
In Berlin's Prenzlauer Berg district.
On Husemannstraße at Kollwitzplatz, one of the most beautiful streets in Prenzlauer Berg.
In a stately old building that is part of a historic ensemble dating from 1886.
In the front building.
Located 3 steps "down."
Less than 150 meters from Kollwitzplatz.
The features:
The commercial premises were completely renovated in 2022. And now, after the tenants moved out, they have been refurbished again.
There are 2 entrances on the street side (see floor plan) and another entrance to the inner courtyard.
The flooring consists of very large concrete gray porcelain tiles in all rooms.
Smooth plaster on the walls.
Room height approx. 2.45 meters.
New wooden insulated glass windows have been installed.
All electrical wiring has been newly installed.
The windows facing Husemannstraße, on the street side, face east.
The windows in the rear room facing the courtyard face north.
The bathroom is equipped with a shower.
The costs for gas heating are not included in the specified additional costs. The new tenant will sign a contract with Gasag for this (proportional costs approx. €180/month). Hot water is supplied by a continuous-flow water heater.
There is no basement for this unit.
Viewings are possible by prior appointment.
Our offers are based on the information provided to us by our client. The offers are made to the best of our knowledge and belief. We accept no liability for the content. The offers are subject to change and non-binding. Errors, prior sale, or prior rental are reserved.
If you are already aware of an opportunity we have identified with regard to the property offered and the willingness of the other party to conclude a contract, please let us know.
-
- Provision: 2,38 MM inkl. MwSt.
- Nettokaltmiete: 1.965,00 €
- Nebenkosten: 2,01 €
- Kaution: 5.895,00 €
-
-
- Baujahr: 1886,2022
- Energiepass-Art: Verbrauch
- Gebäudeart: nichtWohngebäude
- gueltig bis: 21.10.2030








