Bezugsfreie 2-Zi-Altbau-Whg Böckhstrasse im SFL 1.OG Nähe Planufer u. Admiralsbrücke
-
(English version see below)
In Berlin – Kreuzberg im beliebten Gräfekiez!
Unfern der Admiralsbrücke und ganz nah am Paul-Lincke-Ufer, eine tolle Lage zum Verweilen.
Hier eine hübsche 2-Zimmer Wohnung.
In der 1. Etage im ganz ruhig gelegenen Seitenflügel,
in der Böckhstraße, eine hübsche Straße mit viel Altbaubestand und recht viel Kiez – Flair.
Verkauft wird diese Wohnung mit dem Mobiliar, welches Sie auf dem Bildern sehen.
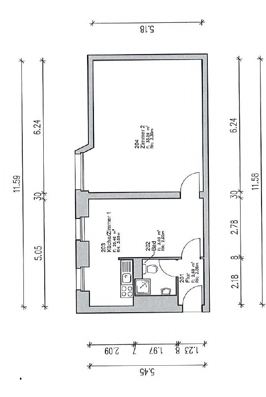
Die Wohnung:
1 Esszimmer (Durchgangszimmer) 1 Wohn-/Schlafraum
1 Duschbad
1 Küche
1 Flur
1 Keller
Die Ausstattung:
Abgezogene Dielenböden in den Räumen.
Raufasertapete an den Wänden.
Stuckelemente an der Decke.
Von den beiden Räumen ist ein Raum (Küchenesstisch) ein Durchgangszimmer (siehe Grundriss) Kein Balkon
Kein Aufzug
Zu der Wohnung gehört ein Keller.
In dem Hausgeld in Höhe von 214,-€ monatlich sind die Heizkosten und die Instandhaltungsrücklage bereits enthalten
Die Grundsteuer p.a. beträgt 127,48 €
Der nahegelegene Kiez ist der Gräfekiez.
Die U-Bahn-Station Schönleinstr. ist nur 400m entfernt.
Unseren Angeboten liegen die uns von unserem Auftraggeber erteilten Auskünfte zugrunde. Die Angebote werden nach bestem Wissen und Gewissen erteilt. Eine Haftung für den Inhalt wird nicht übernommen. Die Angebote sind freibleibend und unverbindlich. Irrtum, Zwischenverkauf bzw. Zwischenvermietung bleiben vorbehalten.
Sofern Ihnen eine durch uns nachgewiesene Gelegenheit im Hinblick auf das angebotene Objekt und die Bereitschaft des anderen Vertragsteils zum Abschluss eines Vertrages bereits bekannt ist, teilen Sie uns dies bitte mit. Zur Abstimmung eines Besichtigungstermin senden Sie uns gern Ihre Telefonnummer.
In Berlin – Kreuzberg
Not far from the Admiralsbrücke and very close to Paul-Linke-Ufer, a popular place to hang out.
Here is a lovely 2-room apartment
on the 1st floor in a very quiet side wing
on Böckhstraße, a pretty street with lots of old buildings and a real neighborhood vibe.
This apartment is being sold with the furniture you see in the pictures.
The apartment:
1 dining room (walk-through room) 1 living/bedroom
1 shower room
1 kitchen
1 hallway
1 basement
The amenities:
Stripped floorboards in the rooms.
woodchip wallpaper on the walls
Stucco elements on the ceiling.
Of the two rooms, one room (kitchen dining table) is a walk-through room (see floor plan) No balcony
No elevator
The apartment has a basement.
The monthly service charge of € 214 includes heating costs and a maintenance reserve.
The annual property tax is €127.48.
The nearby neighborhood is Gräfekiez.
The Schönleinstr. underground station is only 400m away.
Our offers are based on the information provided to us by our client. The offers are made to the best of our knowledge and belief. No liability is assumed for the content. The offers are subject to change and non-binding. Errors, prior sale, or prior rental are reserved.
If you are already aware of an opportunity we have identified with regard to the property offered and the willingness of the other party to conclude a contract, please let us know.
To arrange a viewing appointment, please send us your telephone number. -
- Kaufpreis: 330.000 €
- Mtl. Wohngeld: 216,00 €
- Provision: 3,57% inkl. MwSt.
-
-
- Endenergieverbrauch: 125,3 kWh/( m²*a)
- Baujahr: 1908
- Energiepass-Art: Verbrauch
- Gebäudeart: Wohngebäude
- gueltig bis: 23.04.2032








