Bezugsfreie 3-Zimmer-Altbau-Wohnung in bester Mitte-Lage mit EBK
-
(English version see below)
In Berlin Mitte,
in der Kleinen Hamburger Straße, Höhe Linienstraße,
im 3. Obergeschoss eines Gründerzeit Altbaus
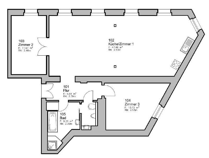
hier eine 2019 sanierte, helle 3-Zimmer-Wohnung mit großer Wohnküche.
Die Wohnung:
1 großes Wohnzimmer
1 mit dem Wohnzimmer verbundene Küche mit Essplatz
2 Schlafzimmer
1 Badezimmer
1 separate Toilette mit Bidet
1 kleiner Flur
1 Keller
Die Ausstattung:
Offener Wohnraum mit angrenzender Wohnküche und Fenstern in zwei Himmelsrichtungen
Fachwerkelemente zwischen Wohnraum und Wohnküche
2019 wurden Heizungen, Böden und Türen in der Wohnung erneuert
Eichenfischgrät-Parkett in den Wohnräumen
Wände gespachtelt, hell gestrichen
Vollholz-Isolierglasfenster in allen Räumen
Badezimmer mit Dusche und freistehender Badewanne
Separates Gast-WC mit Bidet
Fliesen von Golem als Wand- und Bodenbelag in beiden Bädern
Raumhöhe ca. 2,76 Meter.
Zu der Wohnung gehört 1 Keller
In dem Wohngeld in Höhe von EUR 535,00 monatlich sind sowohl die Betriebs- und Heizkosten als auch die anteiligen Kosten für die Instandhaltungsrücklage mit EUR 117,00 bereits enthalten.
Das Eckgebäude Kleine Hamburger Straße / Linienstraße liegt direkt im Herzen von Berlin Mitte. Von hier aus sind nicht nur alle Geschäfte des täglichen Bedarfs innerhalb weniger Minuten zu Fuß zu erreichen, man ist auch an S-Bahn (S Oranienburger Straße) und U-Bahn (U Rosenthaler Platz) sehr gut angebunden. Sowohl die Berlin Cosmopolitain School, als auch die Berlin Metropolitain School sind in der direkten Umgebung. Zudem besticht der Kiez durch seine zahlreichen gastronomischen und kulturellen Angebote.
Unseren Angeboten liegen, die uns von unserem Auftraggeber erteilten Auskünfte zugrunde. Die Angebote werden nach bestem Wissen und Gewissen erteilt. Eine Haftung für den Inhalt wird nicht übernommen. Die Angebote sind freibleibend und unverbindlich. Irrtum, Zwischenverkauf bzw. Zwischenvermietung bleiben vorbehalten.
Sofern Ihnen eine durch uns nachgewiesene Gelegenheit im Hinblick auf das angebotene Objekt und die Bereitschaft des anderen Vertragsteils zum Abschluss eines Vertrages bereits bekannt ist, teilen Sie uns dies bitte mit. Zur Abstimmung eines Besichtigungstermin senden Sie uns gern Ihre Telefonnummer.
(English version)
In Berlin Mitte,
on Kleine Hamburger Straße at the corner of Linienstraße,
on the 3rd floor of a historic Wilhelminian-style building,
here is a bright 3-room flat with a large kitchen-diner, renovated in 2019.
The apartment:
1 large living room
1 kitchen connected to the living room with a dining area
2 bedrooms
1 bathroom
1 separate toilet with bidet
1 small hallway
1 cellar
The features:
Open-plan living area with adjoining kitchen-diner and windows facing two directions
Half-timbered features between the living room and kitchen-diner
Heating, floors and doors in the flat were replaced in 2019
Oak herringbone parquet flooring in the living areas
Walls skimmed and painted in a light colour
Solid wood double-glazed windows in all rooms
Bathroom with shower and freestanding bath
Separate guest WC with bidet
Golem tiles as wall and floor coverings in both bathrooms
Ceiling height approx. 2.76 metres.
The flat includes 1 cellar
The monthly service charge of EUR 535.00 already includes both service and heating costs as well as the proportionate costs for the maintenance reserve fund of EUR 117.00.
The corner building on Kleine Hamburger Straße and Linienstraße is situated right in the heart of Berlin Mitte. Not only are all the shops you need for daily shopping just a few minutes’ walk away, but there are also excellent connections to the S-Bahn (S Oranienburger Straße) and the U-Bahn (U Rosenthaler Platz). Both the Berlin Cosmopolitan School and the Berlin Metropolitan School are in the immediate vicinity. The neighbourhood also boasts a wealth of dining and cultural options.
Our offers are based on the information provided to us by our client. The offers are given to the best of our knowledge and belief. No liability is assumed for the content. The offers are subject to change and non-binding. Errors, prior sale or prior rental are reserved.
If you are aware of an opportunity that we have provided with regard to the property offered and the willingness of the other party to enter into a contract, please let us know.
Please send us your telephone number so that we can arrange a viewing appointment. -
- Kaufpreis: 849.000 €
- Mtl. Wohngeld: 535,00 €
- Provision: 3,57 % inkl. MwSt.
-
-
- Baujahr: 1838,2019
- Gebäudeart: Wohngebäude








