Bezugsfreie u. schöne 34 qm-Whg im 3. OG Manteuffelstr. / Höhe Paul-Lincke-Ufer

-
(English version see below)
In der Manteuffelstraße, keine 30 Meter vom Paul-Lincke-Ufer entfernt, in Berlin Kreuzberg:
verkauft wird diese bezugsfreie hübsche 1-Zimmer-Wohnung
im Quergebäude
in der 3. Etage
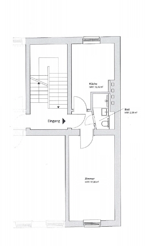
Eine Bauvoranfrage für den Anbau von Balkonen ist bereits gestellt. Bei der angegebene Wohnfläche von 33,95 qm ist der Balkon noch nicht mit eingerechnet.
Der Wohnraum hat eine Ost-Ausrichtung
Die Küche geht nach Westen, hier ist der Balkonanbau angefragt. Auch schön bei dieser Wohnung ist, dass man Querfüften kann, mit original Holz-Doppelkasten-Fenster nach Osten und Westen
1 Wohnküche (Westen) 1 Schlafzimmer (Osten) 1 Duschbad (innenliegend) Diese Wohnung hat noch die original Holz-Dopppelkasten-Fenster allen Räumen.
Die historischen, breiten Dielen in der ganzen Wohnung wurden abgeschliffen sind geölt.
Hohlkehlen an der Decken im Zimmer nach Osten.
Raumhöhe ca. 2,80 Meter
Das innenliegende Badezimmer hat eine Dusche und ist mit anthrazit-Feinsteinfliesen ausgelegt.
Das Gebäude ist ein sehr schöner Stuck-Altbau und besteht aus Vorderhaus, einer Remise und dem Quergebäude.
Die Fassade am Vorderhaus wurde 2015 komplett nach der historischen Vorlage rekonstruiert.
Insgesamt besteht das Haus aus:
– 18 Wohneinheiten. – 2 Gewerbeeinheiten im Souterrain, sowohl im Souterrain Vorderhaus als auch im Souterrain Hinterhaus ist je ein Gewerbemieter ansässig (keine Gastronomie, kein Spätkauf, keine Prostitution).
– 1 Remise im Hof
– 2002 wurde das Gebäude in Wohneigentum geteilt.
In dem Haus wurden Arbeiten durchgeführt, wie z.B.:
– Sanierung der Fassade im Vorderhaus entsprechend der ursprünglichen historischen Gestaltung
– Trockenlegung der beiden Sou-Einheiten – neuer Treppenhausanstrich, die schöne Gründerzeittreppe in beiden Treppenhäusern ist erhalten
– nach Mieterwechsel wurden Leerwohnungen aufwendig saniert
– partielle Erneuerung der Steigeleitung
– eine Gegensprechanlage für VH und HH wurde eingebaut
– Fahrradstellplätze im Hof wurden geschaffen
Die Heizungsanlage (Gaszentral) liefert auch das Warmwasser (Heizungsanlage aus 1999).
In dem Kaufpreis ist das Genehmigungsverfahren für den Bau der Balkone noch nicht enthalten. Sollten die Balkone realisiert werden, wird nach Fertigstellung eine zusätzliche Zahlung von EUR ca. 17.000 fällig.
Unseren Angeboten liegen die uns von unserem Auftraggeber erteilten Auskünfte zugrunde. Die Angebote werden nach bestem Wissen und Gewissen erteilt. Eine Haftung für den Inhalt wird nicht übernommen. Die Angebote sind freibleibend und unverbindlich. Irrtum, Zwischenverkauf bzw. Zwischenvermietung bleiben vorbehalten.
Sofern Ihnen eine durch uns nachgewiesene Gelegenheit im Hinblick auf das angebotene Objekt und die Bereitschaft des anderen Vertragsteils zum Abschluss eines Vertrages bereits bekannt ist, teilen Sie uns dies bitte mit. Zur Abstimmung eines Besichtigungstermin senden Sie uns gern Ihre Telefonnummer.
English version:
In Manteuffelstraße, less than 30 meters from Paul-Lincke-Ufer, in Berlin Kreuzberg:
this attractive, move-in ready 1-room apartment is for sale
in a side building
on the 3rd floor
A preliminary building application for the addition of balconies has already been submitted.
The balcony is not included in the stated living space of 33.95 square meters.
The living room faces east.
The kitchen faces west, where the balcony extension has been requested. Another nice feature of this apartment is that it is cross-ventilated, with original wooden double-glazed windows facing east and west.
1 kitchen/living room
1 bedroom (east) 1 shower room (internal) This apartment still has the original wooden double-glazed windows in all rooms.
The historic, wide floorboards throughout the apartment have been sanded and oiled.
Cove moldings on the ceilings in the east-facing room.
Room height approx. 2.80 meters
The interior bathroom has a shower and is tiled with anthracite fine stone tiles.
The building is a very beautiful old stucco building and consists of a front building, a coach house, and a transverse building.
The facade of the front building was completely reconstructed in 2015 according to the historical model.
In total, the house consists of:
– 18 residential units.
– 2 commercial units in the basement, both in the basement of the front building and in the basement of the rear building, each with one commercial tenant (no restaurants, no late-night shops, no prostitution).
– 1 coach house in the courtyard
– In 2002, the building was divided into residential properties.
Work has been carried out on the house, including:
– Renovation of the front building facade in accordance with the original historical design
– Drainage of the two basement units
– New staircase paintwork; the beautiful Wilhelminian staircase in both stairwells has been preserved
– After a change of tenants, vacant apartments were extensively renovated
– Partial renewal of the riser pipe
– An intercom system for VH and HH was installed
– Bicycle parking spaces were created in the courtyard
The heating system (gas central) also supplies hot water (heating system from 1999).
The purchase price does not include the approval process for the construction of the balconies. If the balconies are built, an additional payment of approximately EUR 17,000 will be due upon completion.
Our offers are based on the information provided to us by our client. The offers are made to the best of our knowledge and belief. No liability is assumed for the content. The offers are subject to change and non-binding. Errors, prior sale, or prior rental are reserved.
If you are already aware of an opportunity proven by us with regard to the property offered and the willingness of the other party to conclude a contract, please let us know.
To arrange a viewing appointment, please send us your telephone number.
-
- Kaufpreis: 234.255 €
- Mtl. Wohngeld: 170,00 €
- Provision: 3,57% inkl. MwSt.
-
-
- Endenergieverbrauch: 179 kWh/( m²*a)
- Baujahr: 1900,2017
- Energiepass-Art: Verbrauch
- Gebäudeart: Wohngebäude
- gueltig bis: 31.07.2035