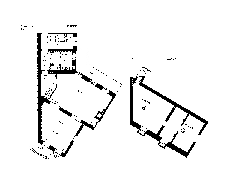
Choriner Str: Ladenbüro ca. 112 qm mit Schaufenster, Gartenzugang u großem Keller

-
(English version see below)
In Berlin Prenzlauer Berg.
In der Choriner Straße, einer freundlichen verkehrtsberuhigten Fahrradstrasse mit viel Einzelhandel, Büroflächen und Gastro in den Erdgeschossen.
Hier eine Büro- und Ladenfläche, mit bodentiefen Fenstern nach Süd-Osten (Eingang) und nach Nord-Westen (Hofseite).
Mit ca. 112,07 qm Fläche im EG verteilt auf zwei offene Räume sowie eine Pantryküche und ein WC. Zusätzlich gibt es ein ca. 62 qm großes Lager im UG.
Im EG: 2 große Räume 1 Terrasse zum Innenhof
1 Pantryküche 1 Abstellraum
1 WC Raumhöhe von ca. 3,70 m im hinteren Bereich und ca.3,20 m vorne zur Straße.
Über eine innenliegende Treppe im Flur gelangt man zum Lager, wo es zwei weitere Räume mit ca. 62 m² gibt. Zur Einheit gehört außerdem ein weiterer Lagerraum mit ca. 9 m², der vom
Gemeinschaftskeller aus zugänglich ist.
Die Ausstattung:
Wände weiss gespachtelt,
neue Holzisolierglasfenster,
Betonestrich, grau gestrichen als Bodenbelag, die Treppenstufe in Eiche.
Die Einheit hat:
1 Eingang von der Strasse 1 Zugang vom Treppenhaus
1 Zugang zur Terrasse, hofseitig gehört zu der Einheit ein Sondernutzungsrecht im Hof (von der Größe wie die Balkone oben-drüber).
Unseren Angeboten liegen die uns von unserem Auftraggeber erteilten Auskünfte zugrunde. Die Angebote werden nach bestem Wissen und Gewissen erteilt. Eine Haftung für den Inhalt wird nicht übernommen. Die Angebote sind freibleibend und unverbindlich. Irrtum, Zwischenverkauf bzw. Zwischenvermietung bleiben vorbehalten.
Sofern Ihnen eine durch uns nachgewiesene Gelegenheit im Hinblick auf das angebotene Objekt und die Bereitschaft des anderen Vertragsteils zum Abschluss eines Vertrages bereits bekannt ist, teilen Sie uns dies bitte mit.
English version:
In Berlin Prenzlauer Berg
At Choriner Strasse, a pretty, traffic-calmed bicycle street
A store space with floor-to-ceiling windows to the south-east (entrance)
…and to the north-west (courtyard side)
With approx. 112.07 sqm area on the ground floor
…and an approx. 62 sqm warehouse in the basement
… plus a cellar
On the ground floor:
2 large rooms
1 terrace
1 kitchenette
1 storeroom
1 WC
room height of approx. 3,70 m in the rear area
… and approx. 3,20 m in front to the street
An interior staircase in the hallway leads to the warehouse, where there are two rooms
with approx. 62 sqm.
The unit also has another storage room with approx. 9 sqm, which is accessible from the
Community cellar.
Fittings:
Walls white spackled,
new wooden insulated glass windows,
Concrete screed, painted gray as flooring, the stair tread in oak.
The unit has:
1 entrance from the street 1 access from the staircase
1 access to the terrace, on the courtyard side belongs to the unit a special right of use in the courtyard (of the same size as the balconies above).
Our offers are based on the information provided to us by our client. The offers are made to the best of our knowledge and belief. No liability is assumed for the content. The offers are subject to change and non-binding. Errors, prior sale or prior letting are reserved.
If you are already aware of an opportunity we have identified with regard to the property on offer and the willingness of the other party to the contract to conclude a contract, please let us know. -
- Provision: 2,38 MM inkl. MwSt.
- Nettokaltmiete: 2.240,00 €
- Nebenkosten: 3,80 €
- Kaution: 6.720,00 €
-
-
- Baujahr: 1890,2000
- Energiepass-Art: Verbrauch
- Gebäudeart: nichtWohngebäude
- gueltig bis: 21.04.2028