Husemannstraße am Kollwitzplatz: bezugsfreie Verkaufsräume im Vorderhaus in schönem Altbau

-
(English version see below)
In Berlin im Prenzlauer Berg.
In der Husemannstraße am Kollwitzplatz, einer der schönsten Straßen im Prenzlauer Berg.
In einem hochherrschaftlichen Altbau, der zu einem Denkmalensemble aus dem Jahr 1886 gehört.
Im Vorderhaus.
Mit 3 Stufen "nach unten" gelegen.
Keine 150 Meter vom Kollwitzplatz entfernt.
Die Ausstattung:
Die Gewerberäume wurden 2022 komplett renoviert. Und nun kürzlich, nach Auzug der Mieter, nochmal überarbeitet.
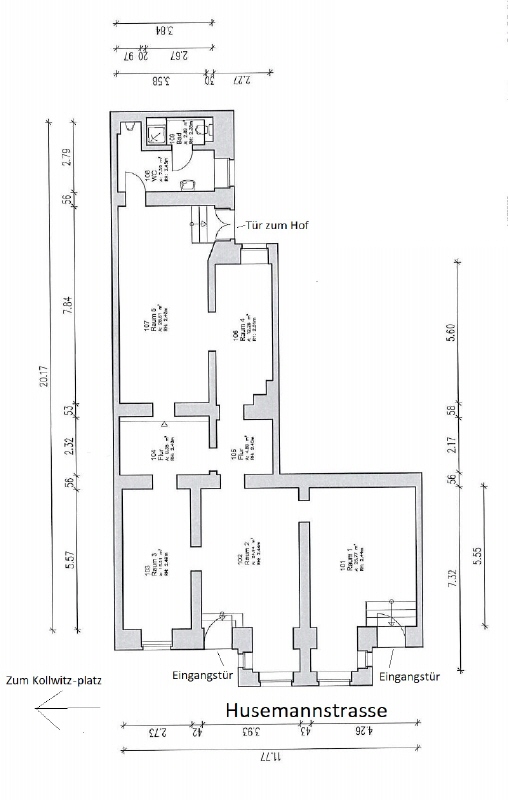
Es hat straßenseitig 2 Zugänge (siehe Grundriss), zum Innenhof gibt es einen weiteren Zugang.
Als Bodenbelag hat es Betongraue sehr große Feinsteinfliesen in allen Räumen.
Fußbodenheizung in allen Räumen.
Glattputz an den Wänden.
Raumhöhe ca. 2,45 Meter.
Neue Holzisolierglasfenster wurden eingebaut.
Die gesamte Elektrik ist neu installiert worden.
Die Fenster zur Husemannstraße, straßenseitig, haben eine Ost-Ausrichtung
Die Fenster im hinteren Raum zu Hof zeigen nach Norden.
Das Badezimmer ist mit einer Dusche ausgestattet.
In dem Hausgeld in Höhe von 275,00 € ist die anteilige Instandhaltungsrücklage enthalten.
Die Kosten für die Gas-Etagenheizung sind in den angegebenen Nebenkosten nicht enthalten. Hierfür schließt der neue Eigentümer/Mieter einen Vertrag mit der Gasag ab (anteilige Kosten ca. 180,-€/Monat). Die Warmwasserversorgung erfolgt über einen Durchlauferhitzer.
Die Grundsteuer beträgt derzeit EUR 687,44 p. a. Zu der Einheit gibt es keinen Keller.
Eine Besichtigung ist nach vorheriger Anmeldung gerne möglich.
Unseren Angeboten liegen die uns von unserem Auftraggeber erteilten Auskünfte zugrunde. Die Angebote werden nach bestem Wissen und Gewissen erteilt. Eine Haftung für den Inhalt wird nicht übernommen. Die Angebote sind freibleibend und unverbindlich. Irrtum, Zwischenverkauf bzw. Zwischenvermietung bleiben vorbehalten.
Sofern Ihnen eine durch uns nachgewiesene Gelegenheit im Hinblick auf das angebotene Objekt und die Bereitschaft des anderen Vertragsteils zum Abschluss eines Vertrages bereits bekannt ist, teilen Sie uns dies bitte mit.
In Berlin in Prenzlauer Berg.
In Husemannstraße on Kollwitzplatz, one of the most beautiful streets in Prenzlauer Berg.
In a stately old building that is part of an ensemble of monuments dating back to 1886.
In the front building.
Located on the ground floor, "downstairs" with 3 steps.
In a truly prestigious listed old building.
… and with an impressive entrance.
Less than 150 meters from Kollwitzplatz.
The equipment:
The commercial premises were completely renovated in 2022. Just recently after the last tenants moved out it was refurbished again.
It has 2 entrances on the street side (see floor plan), there is another entrance to the inner courtyard.
The flooring is very large concrete gray porcelain stoneware tiles in all rooms.
Underfloor heating in all rooms.
Smooth plaster on the walls.
Room height approx. 2.45 meters.
New wooden insulated glass windows have been installed.
The entire electrical system has been newly installed.
The windows facing Husemannstraße, on the street side, have an east orientation
The windows in the rear room facing the courtyard face north.
The bathroom is equipped with a shower.
The house fee of €275.00 includes the pro rata maintenance reserve.
The costs for the gas floor heating are not included in the stated ancillary costs. The new owner/tenant concludes a contract with Gasag for this (pro rata costs approx. €180/month). The hot water supply is provided by an instantaneous water heater.
The property tax currently amounts to EUR 687.44 p.a.
There is no cellar in the unit.
Viewings are possible by prior arrangement.
Our offers are based on the information provided to us by our client. The offers are made to the best of our knowledge and belief. No liability is assumed for the content. The offers are subject to change and non-binding. Errors, prior sale or prior letting are reserved.
If you are already aware of an opportunity that we have identified with regard to the property on offer and the willingness of the other party to the contract to conclude a contract, please let us know. -
- Kaufpreis: 770.000 €
- Provision: 7,14% inkl. MwSt.
- Nebenkosten: 275,00 €
-
-
- Baujahr: 1886,2022
- Energiepass-Art: Verbrauch
- Gebäudeart: nichtWohngebäude
- gueltig bis: 21.10.2030