Italien: Unfern vom Comer See (10km) Villa auf großem Grundstück (2.600qm)
-
(english version see below)
In Italien, in den Bergen, unfern vom Comer See in der Lombardei steht in Magreglio diese wunderschöne Villa aus 1904 zum Verkauf.
Magreglio ist eine kleine Gemeinde in den Bergen mit ca. 680 Einwohnern.
Nach Bellagio sind es von hier aus 10 Km und in 16 Autominuten gemütlich zu erreichen.
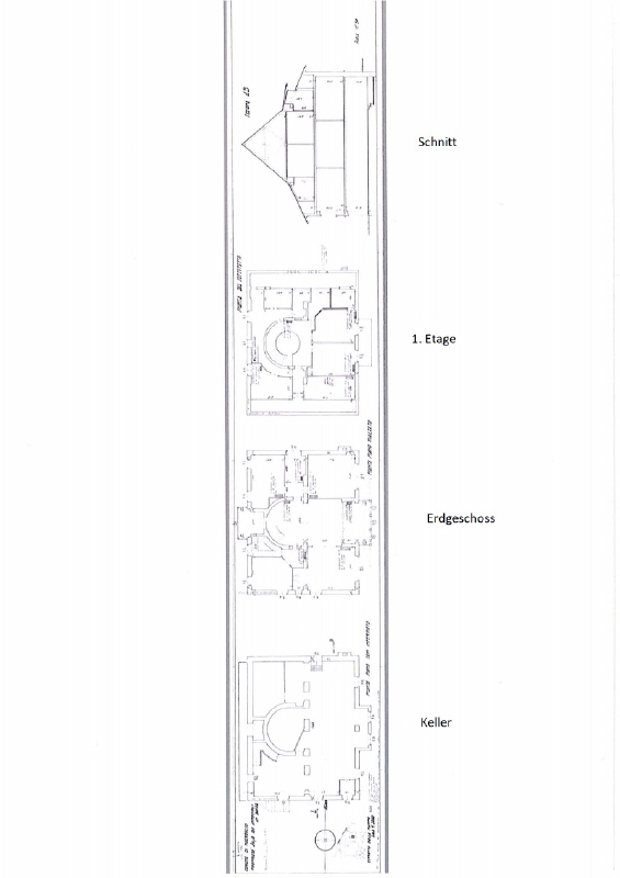
Die sehr schöne Villa mit einer großen Garage hat eine Nutzfläche von ca. 477 qm
Das Erdgeschoss und das 1. OG sind 296 qm
Das Untergeschoss hat 117 qm
und die Garage ist 64 qm groß.
Der Garten ist ca. 2.600 qm groß und sehr gepflegt.
Das Wohnhaus ist komplett unterkellert.
Das Dachgeschoss ist nicht ausgebaut.
Um das Haus herum verläuft ein zugänglicher "Hohlraum", der das Sammeln von Regen-/Bergwasser erleichtert und das Gebäude trocken hält.
Die Aufteilung:
UNTERGESCHOSS
– kleines Schlafzimmer
– mit eigenem Bad, "Spielbereich" (wir hatten Tischtennis …) – Waschküche mit altem Waschbecken
– Heizungsraum
– Mal- und Bügelzimmer
– Keller
ERDGESCHOSS
– Eingangshalle
– Wohnzimmer mit einer sich anschließenden großen Terrasse nach Osten und weiter
– mit einer sich anschließenden großen Stein-Veranda – Esszimmer mit einem offenen Kamin – Küche mit Flügeltür zum Garten
– Hauptschlafzimmer – Studio mit eigenem, gemeinsam genutztem Badezimmer
1. ETAGE
– Hauptkorridor – "gelbes" Zimmer mit eigenem Bad/Dusche,
– "grünes" Zimmer und "rotes" (Einzel-) Zimmer mit gemeinsam genutztem Bad/Badewanne
– Dienstkorridor
– "rosafarbenes" Einzelzimmer und "weißes" Zweibettzimmer mit gemeinsam genutztem Bad/Badewanne
Das DACHGESCHOSS ist nicht ausgebaut und gut über eine Zugleiter zu erreichen.
Info
– Der Kamin im Wohnhaus funktioniert gut
– Die Elektroanlagen wurden 1970 erneuert
– Die Sanitäranlagen wurden 1970 modernisiert. – Das gesamte Dach wurde im Jahr 2003 komplett neu gedeckt.
– Elektro- und Bewässerungssysteme im Garten sind vorhanden, müssten jedoch erneuert werden, – Die hölzernen Gartentreppen müssen gewartet werden.
– Das Heizsystem wird mit Diesel/Öl betrieben, das von der Hauptstraße direkt zum Tank im Garten geliefert wird. – Um das Haus herum verläuft ein zugänglicher "Hohlraum", der das Sammeln von Regen-/Bergwasser ermöglicht und das Gebäude trocken hält
– Die gerade Treppe hinter dem Haus bietet direkten Zugang zur Hauptstraße und kann mit einem Aufzug ausgestattet werden
Fußböden
– Küche, Badezimmer, "Service"-Räume und -bereich sind gefliest.
– Die Hauptschlafzimmer und der Flur im ersten Stock haben Holzböden unter dem Teppichboden
– Die interne Haupttreppe ist aus Holz und die Servicetreppe aus Granit.
– Der Keller hat einen Kiesboden
Laufende Kosten:
Versicherung: 446 € pro Jahr
Müllsteuer 260 € pro Jahr
Gartenpflege mindestens 5.000 € pro Jahr
Grundsteuer (IMU) 5.700 € pro Jahr (+ die Steuer, die Sie nur einmal beim Kauf zahlen) In der kalten Jahreszeit Mindestheizung notwendig, um die Leitungen im Winter sicher zu halten. Licht, Wasser und Heizung sind nutzerabhängig.
Unseren Angeboten liegen, die uns von unserem Auftraggeber erteilten Auskünfte zugrunde. Die Angebote werden nach bestem Wissen und Gewissen erteilt. Eine Haftung für den Inhalt wird nicht übernommen. Die Angebote sind freibleibend und unverbindlich. Irrtum, Zwischenverkauf bzw. Zwischenvermietung bleiben vorbehalten.
Sofern Ihnen eine durch uns nachgewiesene Gelegenheit im Hinblick auf das angebotene Objekt und die Bereitschaft des anderen Vertragsteils zum Abschluss eines Vertrages bereits bekannt ist, teilen Sie uns dies bitte mit. Zur Abstimmung eines Besichtigungstermin senden Sie uns gern Ihre Telefonnummer.
In Italy, in the mountains, not far from Lake Como in Lombardy, this beautiful villa from 1904 is for sale in Magreglio.
Magreglio is a small community in the mountains with about 680 inhabitants.
Bellagio is 10 km from here and can be reached comfortably in 16 minutes by car.
The very beautiful villa with a large garage has a floor space of approx. 477 square meters
The ground floor and first floor are 296 square meters
The basement is 117 square meters
and the garage is 64 square meters.
The garden is about 2,600 square meters in size and very well maintained.
The house is completely built.
The attic is not developed.
Around the house is an accessible "cavity" that facilitates the collection of rain / mountain water and keeps the building dry.
The layout
BASEMENT
– small bedroom
with en-suite bathroom, "games area" (we had table tennis…), – laundry room with old washbasin,
boiler room,
cellar,
painting and ironing room
GROUND FLOOR
– entrance hall
living room
large veranda
dining room with fireplace
kitchen with French door to the garden
master bedroom
studio with en-suite shared bathroom
FIRST FLOOR
– main corridor
– "yellow" room with en-suite bath/shower,
– "green" room and "red" (single) room with shared bath/bathtub
– service corridor
– "pink" single room and "white" twin room with shared bath/bathtub
The ATTIC is not developed and can be reached via a pull ladder
Info
– The fireplace in the house works well
– The electrical systems were renewed in 1970
– The plumbing was modernized in 1970.
– The entire roof was completely re-covered in 2003.
– Electrical and irrigation systems are in place in the garden, but would need to be replaced,
– The wooden garden stairs need maintenance.
The heating system is diesel/oil-fired, with delivery from the main road directly to the tank in the garden.
There is an accessible 'cavity' running around the house, allowing rain/mountain water to be collected and keeping the building dry.
The straight staircase behind the house provides direct access to the main road and can be equipped with a lift.
Floors
– Kitchen, bathrooms, "service" rooms and areas are tiled.
– The master bedrooms and hallway on the first floor have wooden floors under the carpet.
– The internal main staircase is made of wood and the service staircase is made of granite.
– The basement has a gravel floor.
Running costs:
Insurance: €446 per year
Waste tax €260 per year
Garden maintenance at least €5,000 per year
Property tax (IMU) €5,700 per year (+ the tax that you only pay once when you buy) Minimum heating required during the cold season to keep the pipes safe in winter. Light, water and heating are user-dependent.
Our offers are based on the information provided to us by our client. The offers are given to the best of our knowledge and belief. No liability is accepted for the content. The offers are subject to change and are non-binding. Errors, prior sale or prior rental are reserved.
If you are already aware of an opportunity that we have identified with regard to the property offered and the willingness of the other party to the contract to conclude a contract, please let us know.
Please send us your telephone number so that we can arrange a viewing appointment. -
- Kaufpreis: 550.000 €
- Provision: 3,48% inkl. MwSt.
-
-
- Baujahr: 1904,2003
- Gebäudeart: Wohngebäude









