Nebeneinander am Ludwigkirchplatz: 2 Whg m Aufzug Balkon u Stellplatz
-
(english version see below)
Die beiden Wohnungen werden nur zusammen verkauft.
Die beiden Wohnungen wurden bis vor kurzem als eine Wohnung genutzt (Wanddurchbruch).
Alle Angaben im Exposé sind für beide Wohnungen zusammen. Die Fläche von 82,34 qm ist die Grundfläche von beiden Wohnungen zusammen.
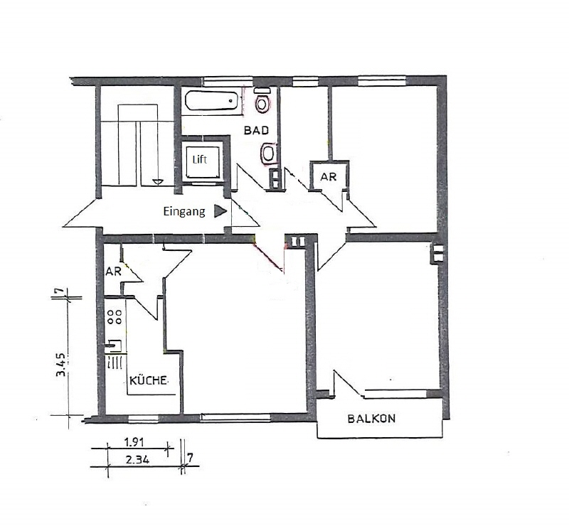
Im allerschönsten Berlin-Charlottenburg, in der Ludwigkirchstraße, direkt am schönen Ludwigkirchplatz gelegen. Im Vorderhaus, in der 1. Etage.
… mit Aufzug. …. mit Balkon.
Diese beiden Einheiten wurden von der Verkäuferin zusammengelegt und als eine Wohnung genutzt.
Verkauft werden diese beiden kleinen, zusammengelegten Wohnungen mit einem relativ großen Balkon nach Süden und einem schönen Ausblick in die Straße, direkt auf den Ludwigkirchplatz.
Die Wohnung im jetzigen Grundriss hat Fenster nach Süden und Norden.
Die Wohnung im Ist-Zustand:
2 Grundbücher 2 Keller
2 Eingänge vom Treppenhaus
1 Küche
1 Esszimmer
1 Balkonzimmer
1 Balkon mit einer Markise
1 Schlafzimmer
1 Duschbad mit Fenster
1 Abstellraum 1 Flur
1 PKW-Stellplatz im Hof für zzgl. 50.000,-€.
Die Ausstattung:
Die Original-Doppelkastenfenster sind noch erhalten und in einem guten Zustand.
Eine gebrauchte Einbauküche mit allen Geräten ist vorhanden.
Das Badezimmer mit Fenster hat eine recht große Dusche.
Glasfasertapete an den Wänden.
Laminatfußboden in den Räumen.
Raumhöhe ca. 2,72 Meter.
Zu der Wohnung gehören 2 Keller, da 2 Grundbücher, sprich: 2 Wohnungen und 2 Abrechnungen über die Hausverwaltung.
Gegensprechanlage im Hause vorhanden.
Es handelt sich um ein reines Wohnhaus mit insgesamt 11 Wohneinheiten.
Die jährliche Grundsteuer betägt 304,28 €.
Im Innenhof befinden sich Fahrradabstellplätze.
1 PKW-Stellpatz im Hof wird für zzgl. 50.000.,-€ verkauft.
Unseren Angeboten liegen die uns von unserem Auftraggeber erteilten Auskünfte zugrunde. Die Angebote werden nach bestem Wissen und Gewissen erteilt. Eine Haftung für den Inhalt wird nicht übernommen. Die Angebote sind freibleibend und unverbindlich. Irrtum, Zwischenverkauf bzw. Zwischenvermietung bleiben vorbehalten.
Sofern Ihnen eine durch uns nachgewiesene Gelegenheit im Hinblick auf das angebotene Objekt und die Bereitschaft des anderen Vertragsteils zum Abschluss eines Vertrages bereits bekannt ist, teilen Sie uns dies bitte mit. Zur Abstimmung eines Besichtigungstermin senden Sie uns gern Ihre Telefonnummer.
The two apartments are only being sold together.
Until recently, the two apartments were used as one apartment (Wall breakthrough).
All information in the exposé is for both apartments together.
The area of 82.34 sqm is the floor space of both apartments together.
Located in the most beautiful part of Berlin-Charlottenburg, on Ludwigkirchstraße, directly on the beautiful Ludwigkirchplatz. In the front building, on the 1st floor….
with elevator….
with balcony.
These two units were combined by the seller and used as one apartment.
These two small, combined apartments are being sold with a relatively large south-facing balcony and a beautiful view of the street, directly onto Ludwigkirchplatz.
The apartment in its current layout has windows facing south and north.
The apartment in its current condition:
2 land registers 2 basements
2 entrances from the stairwell
1 kitchen
1 dining room
1 balcony room
1 balcony with an awning
1 bedroom
1 shower room with window
1 storage room 1 hallway
1 parking space in the courtyard for an additional €50,000
The fixtures
The original double-glazed windows are still intact and in good condition.
A used fitted kitchen with all appliances is available.
The bathroom with window has a fairly large shower.
Fiberglass wallpaper on the walls.
Laminate flooring in the rooms.
Room height approx. 2.72 meters.
The apartment includes 2 basements, as there are 2 land registers, i.e., 2 apartments and 2 bills from the property management company.
Intercom system available in the building.
This is a residential building with a total of 11 residential units.
The annual property tax is € 304.28
There is space for bicycle parking in the courtyard.
One parking space in the courtyard is being sold for an additional €50,000.
Our offers are based on the information provided to us by our client. The offers are made to the best of our knowledge and belief. No liability is assumed for the content. The offers are subject to change and non-binding. Errors, prior sale, or prior rental are reserved.
If you are already aware of an opportunity we have identified with regard to the property offered and the willingness of the other party to conclude a contract, please let us know. To arrange a viewing appointment, please send us your phone number.
-
- Kaufpreis: 550.000 €
- Mtl. Wohngeld: 418,00 €
- Provision: 3,57% inkl. MwSt.
-
-
- Endenergieverbrauch: 139 kWh/( m²*a)
- Baujahr: 1959,2005
- Energiepass-Art: Verbrauch
- Gebäudeart: Wohngebäude
- gueltig bis: 20.07.2028








