Penthouse-Maisonette-Whg mit 3 Terrassen in der Schönhauser Allee mit EBK u. Aufzug

-
(english version see below)
Angeboten wird ein unbefristeter Wohnmietvertrag mit einer Genehmigung zur teilgewerblichen Nutzung.
In Berlin Prenzlauer Berg, in der Schönhauser Allee – Höhe Kastanien Allee, in einem Neubau, welcher auf einem aufwendig kernsanierten historischen Industriegebäude neu aufgebaut wurde. Entstanden ist diese sehr schöne Maisonette-Wohnung mit 2 großen Terrassen nach Osten. Aus der Wohnung und von den beiden Terrassen hat man einen sehr schönen Blick über die Dächer der Stadt. Mit Aufzug.
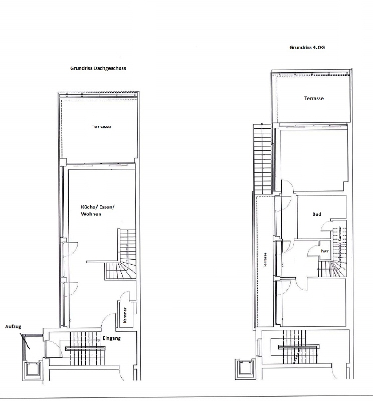
5.OG (die obere Etage, die Living-Etage) 1 Großer Wohnraum mit Bodentiefen Fenstern nach Norden und Osten Die Terrasse mit dem spektakulären Blick über die Stadt ist vom Wohnraum aus zu begehen Mit einer offenen Wohnküche inkl. einer EBK. 1 Gast-WC. Raumhöhe ca.: 3,10 Meter.
Über eine schön gestaltete Treppe gelangt man in das 4.OG, zu den Privaträumen.
hier finden sich 2 separate Räume, Schlaf- und/oder Arbeitszimmer. Von diesen beiden Räumen gibt es jeweils einen Zugang auf eine weitere Terrasse. Es gibt ein großes Badezimmer mit Badewanne und einer schwellenfreien Dusche. In dem Flur gibt es genügend Platz für Einbauschränke (Ankleide). 2 separate Hauswirtschaftsräume, , einer davon für die Waschmaschine und Trockner.
Raumhöhe ca.: 2,77 Meter.
Details zur Ausstattung: eine komplette Einbauküche (vom Tischler gebaut) ist vorhanden. Glattputz an den Wänden,
bodentiefe Holz-Isolierglas-Fenster in allen Räumen, außer im Gast-WC, hier ist ein Oberlicht eingebaut, welches sich elektrisch öffnen lässt. Das große Badezimmer ist mit einer Badewanne und schwellenfreien Dusche ausgestattet. Durch die große wattierte Glas-Schiebetür zum Bad kommt auch in das Hauptbadezimmer viel Licht.
Zu der Wohnung gehört 1 Keller
Allgemein zum Haus: Es gibt einen schön gestalteten Innenhof mit einer Bepflanzung/ Konzept angelehnt an die Brooklyn Bridge in New York. Eine Video Gegensprechanlage ist eingebaut. Alle Einheiten in der Anlage verfügen über eine Datenverkabelung in allen Räumen.
Info:
Die Mindestlaufzeit beträgt 2 Jahre.
Der Mietvertrag wird eine Staffel-/Index-Miete enthalten.
Der Mietvertrag ist ein Wohnungsmietvertrag mit der Genehmigung einer teilgewerblichen Nutzung.
Unseren Angeboten liegen die uns von unserem Auftraggeber erteilten Auskünfte zugrunde. Die Angebote werden nach bestem Wissen und Gewissen erteilt. Eine Haftung für den Inhalt wird nicht übernommen. Die Angebote sind freibleibend und unverbindlich. Irrtum, Zwischenverkauf bzw. Zwischenvermietung bleiben vorbehalten.
Sofern Ihnen eine durch uns nachgewiesene Gelegenheit im Hinblick auf das angebotene Objekt und die Bereitschaft des anderen Vertragsteils zum Abschluss eines Vertrages bereits bekannt ist, teilen Sie uns dies bitte mit. Zur Abstimmung eines Besichtigungstermin senden Sie uns gern Ihre Telefonnummer.
The rental agreement is a residential lease with permission for partial commercial use.
The apartment is being rented to individuals who – have registered a business
– will be issuing invoices from the new registered address.
Between the famous subway stations:
1. Schönhauser Allee
2. Eberswalder Straße
3. Senefelder Platz, a very individual concept for new living and business has been created in the style of NYC.
In Berlin Prenzlauer Berg, on Schönhauser Allee – near Kastanien Allee, in a new building that has been rebuilt on the site of a extensively renovated historic industrial building. The result is this beautiful maisonette apartment with two large terraces facing east. The apartment and both terraces offer a beautiful view over the city rooftops.
With elevator.
5th floor (the upper floor, the living floor) 1 large living room with floor-to-ceiling windows facing north and east
The terrace with spectacular views over the city is accessible from the living room
With an open-plan kitchen including a fitted kitchen.
1 guest toilet.
Room height approx.: 3.10 meters.
A beautifully designed staircase leads to the
4th floor, to the private rooms.
Here you will find 2 separate rooms, a bedroom and/or study.
Each of these two rooms has access to another terrace.
There is a large bathroom with a bathtub and a barrier-free shower.
The hallway offers enough space for built-in wardrobes (dressing room).
Two separate utility rooms, one of which is for the washing machine and dryer.
Room height approx.: 2.77 meters.
Details of the furnishings: A complete fitted kitchen (built by a carpenter) is available.
Smooth plaster on the walls,
floor-to-ceiling insulated wooden windows in all rooms except the guest toilet, which has a skylight that can be opened electrically.
The large bathroom is equipped with a bathtub and a barrier-free shower. The large padded sliding glass door to the bathroom allows plenty of light into the main bathroom.
The apartment has 1 basement
General information about the building: There is a beautifully designed courtyard with plants/a concept inspired by the Brooklyn Bridge in New York. A video intercom system is installed. All units in the complex have data cabling in all rooms.
Info:
The minimum term is 2 years.
The rental agreement will include a graduated/indexed rent.
The rental agreement is a residential rental agreement with approval for partial commercial use.
Our offers are based on the information provided to us by our client. The offers are made to the best of our knowledge and belief. No liability is assumed for the content. The offers are subject to change and non-binding. Errors, prior sale, or prior rental are reserved.
If you are already aware of an opportunity proven by us with regard to the property offered and the willingness of the other party to conclude a contract, please let us know.
To arrange a viewing appointment, please send us your telephone number. -
- Nettokaltmiete: 3.155,22 €
- Warmmiete: 3.887,20 €
- Nebenkosten: 731,98 €
- Kaution: 9.465,66 €
-
-
- Endenergieverbrauch: 120,8 kWh/( m²*a)
- Baujahr: 2019
- Energiepass-Art: Verbrauch
- Gebäudeart: Wohngebäude
- gueltig bis: 29.02.2029