Vom Schönen das Schönste: bezugsfreie 7-Zimmer Altbau-Etage mit EBK, Aufzug und Balkon
-
(English version, please see below)
Im schönsten Berlin-Charlottenburg, in der Niebuhrstraße, Höhe Bleibtreustraße,
eingebettet in den Charlottenburger Kiez, unweit des Savigny-Platzes, der Kantstraße und des Kurfürsten Damms liegt diese großzügige 7-Zimmer-Wohnung, die keine Wünsche offen lässt!
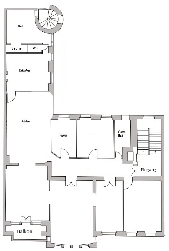
Die Wohnung aktuell:
1 Küche
1 Esszimmer
1 Wohnzimmer
3 Schlafzimmer
1 Ankleidezimmer
2 Badezimmer
1 Hauswirtschaftsraum
1 Balkon
1 Keller
Die Ausstattung:
– 4 Zimmer zur Niebuhrstraße: davon aktuell eine, mit hochwertigen, raumhohen Einbauten ausgestattete Ankleide sowie eine Enfilade aus Arbeitszimmer, Wohnzimmer und Esszimmer.
– Vom Esszimmer aus ist der Balkon mit Nordausrichtung zu begehen.
– Alle Zimmer sind separat über den Flur zu erreichen.
– Raumhöhe von bis zu 3,80 m.
– Das Esszimmer öffnet sich zur großen Küche, dem "Berliner Zimmer".
– Maßangefertigte Siematic-Einbauküche mit großer Kücheninsel, Marmorrückwand und allen Geräten.
– Hauptschlafzimmer zum Innenhof mit Klimaanlage.
– Hauptbadezimmer mit separatem WC.
– Hauptbadezimmer vollständig in Salvatori-Marmor, mit freistehender Wanne, Dusche/Dampfbad und Fantini-Armaturen.
– Ein weiteres Gästebad mit bodengleicher Dusche, Salvatori-Marmor und Fantini-Armaturen.
– Weiteres Schlafzimmer/Kinderzimmer zum Hof.
– Hauswirtschaftsraum mit Fenster und raumhohen Einbauschränken für viel Staufläche.
– Eichenfischgrätparkett in den Wohnräumen.
– Originale Flügeltüren, z.T. mit Tiffany-Glas (siehe Bilder) und aufwendiger Deckenstuck.
– Zum Teil neu angebrachte Deckenbemalung nach originalen Fragmenten.
– Aufgearbeitete, originale Holzdoppelkastenfenster.
– Digitalstrom-Smart-Home-System zur Steuerung von Licht und Temperatur.
– Videogegensprechanlage vorhanden.
– Hübscher Innenhof.
– Imposantes Entrée.
– Bereich für Fahrräder und Kinderwagen im Untergeschoss.
Eine ausführliche Beschreibung entnehmen Sie der Baubeschreibung, welche wir Ihnen auf Anfrage gern zusenden. Das gesamte Gebäude wurde in den letzten Jahren aufwendig saniert, alle Arbeiten wurden mit einem außergewöhnlich hohen Standard durchgeführt, was sich in der wohldurchdachten Grundrissgestaltung, der nachhaltigen Materialauswahl und der modernsten Haustechnik widerspiegelt.
In dem Hausgeld in Höhe von EUR 1.270,-€ ist das Wohngeld und die anteilige Instandhaltungsrücklage enthalten.
Unseren Angeboten liegen die uns von unserem Auftraggeber erteilten Auskünfte zugrunde. Die Angebote werden nach bestem Wissen und Gewissen erteilt. Eine Haftung für den Inhalt wird nicht übernommen. Die Angebote sind freibleibend und unverbindlich. Irrtum, Zwischenverkauf bzw. Zwischenvermietung bleiben vorbehalten. Sofern Ihnen eine durch uns nachgewiesene Gelegenheit im Hinblick auf das angebotene Objekt und die Bereitschaft des anderen Vertragsteils zum Abschluss eines Vertrages bereits bekannt ist, teilen Sie uns dies bitte mit. Zur Abstimmung eines Besichtigungstermin senden Sie uns gern Ihre Telefonnummer.
In the most beautiful part of Berlin-Charlottenburg, on Niebuhrstraße, near Bleibtreustraße,
nestled in the Charlottenburg neighborhood, not far from Savignyplatz, Kantstraße, and Kurfürstendamm, lies this spacious 7-room apartment that leaves nothing to be desired!
The apartment currently has:
1 kitchen
1 dining room
1 living room
3 bedrooms
1 dressing room
2 bathrooms
1 utility room
1 balcony
1 basement
The features:
– 4 rooms facing Niebuhrstraße: currently one of these is a dressing room with high-quality, floor-to-ceiling built-in storage, and there is also an enfilade of study, living room, and dining room.
– The north-facing balcony can be accessed from the dining room.
– All rooms are accessible separately via the hallway.
– Room height of up to 3.80 m.
– The dining room opens onto the large kitchen, the "Berlin room."
– Custom-made Siematic fitted kitchen with large kitchen island, marble backsplash, and all appliances.
– Master bedroom facing the inner courtyard with air conditioning.
– Master bathroom with separate toilet.
– Master bathroom entirely in Salvatori marble, with freestanding bathtub, shower/steam bath, and Fantini fittings.
– Another guest bathroom with floor-level shower, Salvatori marble, and Fantini fittings.
– Additional bedroom/children's room facing the courtyard.
– Utility room with window and floor-to-ceiling built-in cupboards for plenty of storage space.
– Oak herringbone parquet flooring in the living areas.
– Original double doors, some with Tiffany glass (see pictures) and elaborate ceiling stucco.
– Partially newly applied ceiling painting based on original fragments.
– Refurbished, original wooden double-glazed windows.
– Digitalstrom smart home system for controlling lighting and temperature.
– Video intercom system available.
– Pretty courtyard.
– Impressive entrance hall.
– Area for bicycles and strollers in the basement.
For a detailed description, please refer to the building specifications, which we will be happy to send you on request. The entire building has been extensively renovated in recent years, with all work carried out to an exceptionally high standard, as reflected in the well-thought-out floor plan, the sustainable choice of materials, and the state-of-the-art building services. The maintenance fee of EUR 1,270 includes the housing allowance and the pro-rata maintenance reserve.
Our offers are based on the information provided to us by our client. The offers are made to the best of our knowledge and belief. We accept no liability for the content. The offers are subject to change and non-binding. Errors, prior sale, or prior rental are reserved. If you are already aware of an opportunity we have identified with regard to the property offered and the willingness of the other party to conclude a contract, please let us know. To arrange a viewing appointment, please send us your phone number.
-
- Kaufpreis: 2.950.000 €
- Mtl. Wohngeld: 1.270,00 €
- Provision: 3,57% inkl. MwSt.
-
-
- Endenergiebedarf: 76,3 kWh/( m²*a)
- Baujahr: 1905,2022
- Energiepass-Art: Bedarf
- Gebäudeart: Wohngebäude
- gueltig bis: 04.06.2033








